6317 Grey Oak Lane
6317 Grey Oak Lane
6317 Grey Oak Lane
6317 Grey Oak Lane
SEE ALL PHOTOS
6317 Grey Oak Lane
6317 Grey Oak Lane
6317 Grey Oak Lane
6317 Grey Oak Lane
Listed by Dicksie M Ward with Christies International Real Estate Bluegrass
For Sale

6317 Grey Oak Lane

6317 Grey Oak Lane, Nicholasville, KY 40356

$477,617
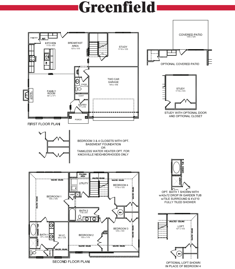
Please check progress pictures under the Documents tab. The Greenfield offers a great first floor layout with a large family room opening to a spacious island kitchen and breakfast area. The kitchen features an island design with countertop dining, a corner pantry, stainless appliances - gas range, dishwasher, chimney hood, micro-drawer, & French Door refrigerator. The first floor includes a coat closet and full bath with a tiled shower, conveniently located off the entry hall, as well as a study w/ closet at the rear of the home. The family room has a fireplace with stone to ceiling w/ raised hearth and a barnwood mantle. Outside there is a 14x12 covered patio. Upstairs are the primary suite and three additional bedrooms, all with vaulted ceilings. The primary suite includes a large walk-in closet, luxurious bath with double bowl vanity, fully tiled separate shower, and garden tub. The hall bath features a spacious double bowl vanity. A separate utility room with folding counter is located on the second floor next to bedrooms. Conveniently located near shopping, restaurants, and medical facilities. Job# 45GN (Trim Stage))

5
beds

3
baths

2,498 Sq.Ft. LIVING AREA

8,123 Sq.Ft. lot

Dicksie Ward

Dicksie Ward

Judy Craft

Judy Craft

Features & Amenities

Interior

  • total bedrooms5
  • Total bathrooms3
  • full bathrooms3
  • Laundry room Electric Dryer Hookup, Washer Hookup
  • Flooring Carpet
  • Fireplace Factory Built, Family Room, Gas Log
  • APPLIANCES Dishwasher, Disposal, Microwave, Range, Refrigerator
  • other interior Features Walk-In Closet(s)

Area & Lot

  • Status For Sale
  • Living Area2,498 Sq.Ft.
  • Total Area2,498 Sq.Ft.
  • Lot Area8,123 Sq.Ft.
  • MLS® ID25501624
  • TypeResidential
  • YEAR BUILT2025
  • NeighborhoodNicholasville
  • Elementary SchoolBrookside
  • Middle SchoolEast Jessamine Middle School
  • High SchoolEast Jess HS
  • School DistrictJessamine County - 9

Exterior

  • STORIES2
  • Garage Space2.0
  • water SourcePublic
  • roofDimensional Style
  • parkingAttached Garage, Driveway, Garage Door Opener
  • HEAT TYPEForced Air, Natural Gas, Zoned
  • AIR CONDITIONINGElectric, Zoned
  • sewerPublic Sewer
  • SubstructureSlab

Financial

  • Sales Price$477,617
  • HOA $75/yr
image

Schedule a Showing

We would love to show you our beautiful property. Please select your preferred date and time below. An agent will be in touch shortly to confirm your appointment.

Schedule a Showing

We would love to show you our beautiful property. Please select your preferred date and time below. An agent will be in touch shortly to confirm your appointment.
Thank you for your interest in 6317 Grey Oak Lane, Nicholasville, KY 40356. We are reviewing your request and will be in touch shortly!

Mortgage Calculator

Estimate your monthly mortgage payment, including the principal and interest, property taxes, and HOA. Adjust the values to generate a more accurate rate.
All estimates are provided for informational purposes only. Actual amounts may vary.
$0,000 Your Payment 20 15 65
$0,000 Your Payment

Nicholasville

Jessamine County

Explore

LET US TELL YOUR STORY

Whether you're thinking about listing your property, beginning your search for a new one, or have a question about the area, feel free to contact us.

Follow Us on Instagram