2309 Calendula Road
2309 Calendula Road
2309 Calendula Road
2309 Calendula Road
2309 Calendula Road
2309 Calendula Road
2309 Calendula Road
SEE ALL PHOTOS
2309 Calendula Road
2309 Calendula Road
2309 Calendula Road
2309 Calendula Road
2309 Calendula Road
2309 Calendula Road
2309 Calendula Road
Listed by Jennifer Sisson with Christies International Real Estate Bluegrass
Sold

2309 Calendula Road

2309 Calendula Road, Lexington, KY 40511

$428,530
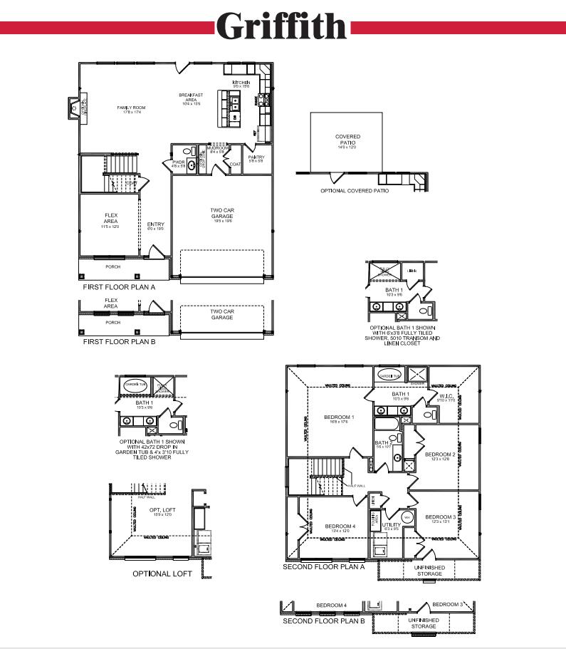
The Griffith is a traditional two-story home with a versatile flex area off the entry and four upstairs bedrooms. The living areas on the first floor follow an open concept design, with an island kitchen and spacious breakfast area adjoining a large family room. A mudroom with a drop zone conveniently connects the garage to the kitchen. Upstairs you will find the primary bedroom suite, three additional bedrooms, and utility room with folding counter. The large primary suite features a walk-in closet and a spacious bath with separate vanities, separate shower, and garden tub. Additional features include vaulted ceilings on the second floor, a covered front porch, and an unfinished storage area accessed from bedroom #3.

4
beds

3
baths

2,540 Sq.Ft. LIVING AREA

7,140 Sq.Ft. lot

Jennifer Sisson

Jennifer Sisson

Features & Amenities

Interior

  • total bedrooms4
  • Total bathrooms3
  • full bathrooms2
  • half bathroom1
  • Laundry room Electric Dryer Hookup, Washer Hookup
  • Flooring Carpet, Other
  • APPLIANCES Dishwasher, Disposal, Range
  • other interior Features Walk-In Closet(s)

Area & Lot

  • Status Sold
  • Living Area2,540 Sq.Ft.
  • Total Area2,540 Sq.Ft.
  • Lot Area7,140 Sq.Ft.
  • MLS® ID24011012
  • TypeResidential
  • YEAR BUILT2024
  • NeighborhoodLexington
  • View DescriptionNeighborhood
  • Elementary SchoolCoventry Oak
  • Middle SchoolLeestown
  • High SchoolBryan Station
  • School DistrictFayette County - 1

Exterior

  • STORIES2
  • Garage Space2.0
  • water SourcePublic
  • roofDimensional Style
  • parkingAttached Garage, Driveway, Garage Door Opener
  • HEAT TYPEForced Air, Zoned
  • AIR CONDITIONINGElectric, Zoned
  • sewerPublic Sewer
  • SubstructureSlab

Financial

  • Sales Price$428,530
  • HOA $200/yr

Lexington

Fayette County

Explore

LET US TELL YOUR STORY

Whether you're thinking about listing your property, beginning your search for a new one, or have a question about the area, feel free to contact us.

Follow Us on Instagram